Search

Leave a Message

Thank you for your message. I will be in touch with you shortly.

Explore My Properties

Property Description

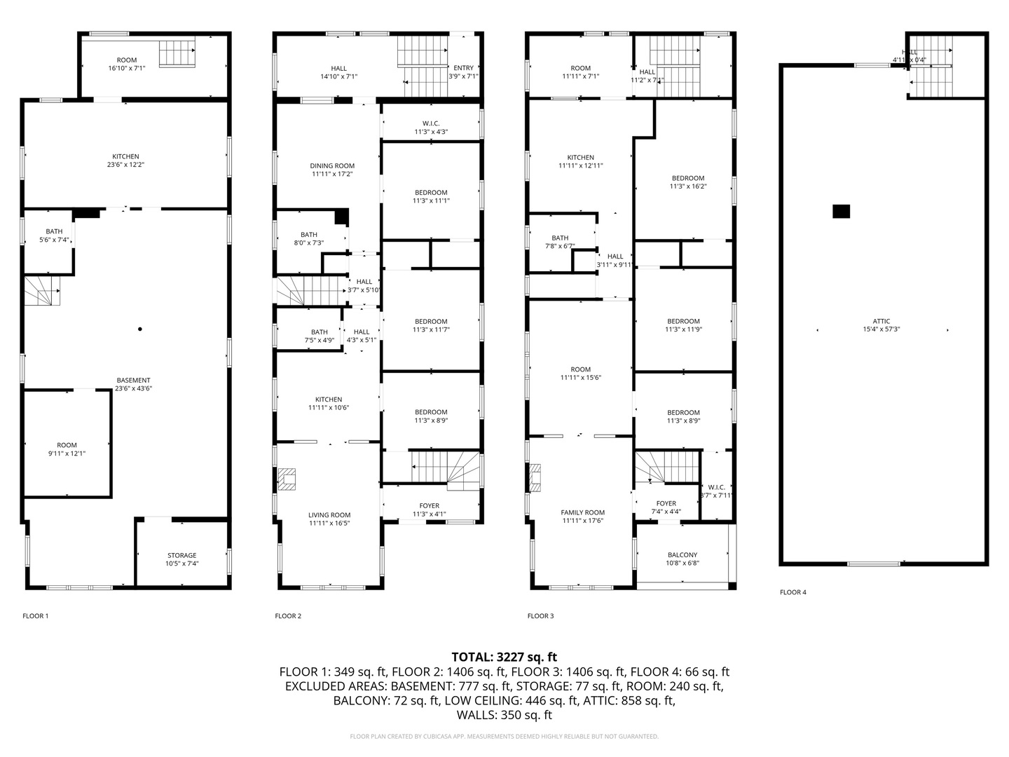
Welcome to this charming and spacious two-flat located on a quiet, tree-lined block. This well-maintained property offers 6 bedrooms, 3 full baths, and a large partially finished basement with a kitchen and bathroom with plenty of potential. Each unit features beautiful hardwood floors, original wood accents, and stained-glass windows that add timeless character and warmth. The second-floor unit includes a private balcony, perfect for relaxing or enjoying your morning coffee. Recent updates include new electrical throughout. Enjoy the convenience of a private driveway and a 2-car garage, offering ample parking and storage space. Ideal for investors or owner-occupants, this home provides great income potential-live in one unit and rent the other or rent both for a solid investment. With its classic Chicago charm, and strong rental potential, this is a must-see property!

Overview

Property Status
Sold
MLS ID
12497462
Property Type
Multi-Family
Year Built
1926

Features & Amenities

Architecture Styles
Brownstone
Garage Spaces
2.0
Water Source
Lake Michigan, Public
Roof
Asphalt
Parking
Garage Door Opener, Yes, Garage Owned, Detached, Garage
Heat Type
Natural Gas, Radiant
Sewer
Public Sewer
Substructure
Brick/Mortar
Other Exterior Features
Balcony
School District
299
Sales Price
$305,000
Real Estate Tax
$2,321/yr
Zoning
MULTI

Downloads

8638 S Escanaba Avenue

Schedule a Tour

I would love to help you see this beautiful home! As a full-service brokerage, I can help you tour. Please submit an offer, and answer questions about the buying process.

Thank you

for your interest in 8638 S Escanaba Avenue, Chicago, IL 60617

8638 S Escanaba Avenue
Navigate

Listings Just for You

Portfolio

  • 4309 WATERFORD LANDING DR Sold

    $765,000

    4309 WATERFORD LANDING DR, LUTZ, FL 33558

    • 4 Beds
    • 3 Baths
    • 2,971 Sq.Ft.
  • 423 E COUNTY LINE RD Sold

    $750,000

    423 E COUNTY LINE RD, LUTZ, FL 33549

    • 3 Beds
    • 3 Baths
    • 2,288 Sq.Ft.
  • 8001 WOODLEAF BLVD For Sale

    $725,000

    8001 WOODLEAF BLVD, WESLEY CHAPEL, FL 33544

    • 3 Beds
    • 2 Baths
    • 2,176 Sq.Ft.
  • 11122 Leamington Avenue S Sold

    $565,000

    11122 Leamington Avenue S, Alsip, IL 60803

    • 5 Beds
    • 3 Baths
    • 2,800 Sq.Ft.
  • 6170 LA PINE RD Sold

    $555,000

    6170 LA PINE RD, BROOKSVILLE, FL 34602

    • 4 Beds
    • 3 Baths
    • 2,400 Sq.Ft.
  • 6604 S Langley Avenue Sold

    $555,000

    6604 S Langley Avenue, Chicago, IL 60637

    • 5 Beds
    • 4 Baths
  • 506 COLSON RD Pending

    $535,000

    506 COLSON RD, PLANT CITY, FL 33567

    • 3 Beds
    • 2 Baths
    • 2,032 Sq.Ft.
  • 2347 FOGGY RIDGE PKWY Sold

    $533,000

    2347 FOGGY RIDGE PKWY, LAND O LAKES, FL 34639

    • 3 Beds
    • 2 Baths
    • 1,952 Sq.Ft.
  • 553 Ivory Lane Sold

    $490,000

    553 Ivory Lane, Bartlett, IL 60103

    • 3 Beds
    • 4 Baths
    • 2,700 Sq.Ft.
  • 18509 Bellamy Road Sold

    $485,000

    18509 Bellamy Road, Country Club Hills, IL 60478

    • 5 Beds
    • 3 Baths
    • 3,761 Sq.Ft.
  • 25325 WELSH POPPY WAY Sold

    $410,000

    25325 WELSH POPPY WAY, LAND O LAKES, FL 34639

    • 3 Beds
    • 3 Baths
    • 2,014 Sq.Ft.
  • 10506 PENNY GALE LOOP Sold

    $400,000

    10506 PENNY GALE LOOP, SAN ANTONIO, FL 33576

    • 4 Beds
    • 3 Baths
    • 2,260 Sq.Ft.
  • 3752 Terrace Drive Sold

    $380,000

    3752 Terrace Drive, Lansing, IL 60438

    • 3 Beds
    • 3 Baths
    • 1,796 Sq.Ft.
  • 8638 S Escanaba Avenue Sold

    $305,000

    8638 S Escanaba Avenue, Chicago, IL 60617

    • 6 Beds
    • 4 Baths
  • 14804 Minerva Avenue Sold

    $249,700

    14804 Minerva Avenue, Dolton, IL 60419

    • 4 Beds
    • 3 Baths
    • 2,096 Sq.Ft.
  • 313 Jackson Street Sold

    $225,000

    313 Jackson Street, Park Forest, IL 60466

    • 5 Beds
    • 2 Baths
    • 1,732 Sq.Ft.
  • 20138 Arroyo Avenue Sold

    $210,000

    20138 Arroyo Avenue, Lynwood, IL 60411

    • 4 Beds
    • 2 Baths
    • 1,794 Sq.Ft.
  • 2338 GAINESBOROUGH LOOP #0 Sold

    $164,000

    2338 GAINESBOROUGH LOOP #0, SUN CITY CENTER, FL 33573

    • 2 Beds
    • 2 Baths
    • 1,168 Sq.Ft.
  • 9606 S Eggleston Avenue Sold

    $122,500

    9606 S Eggleston Avenue, Chicago, IL 60628

    • 3 Beds
    • 2 Baths
    • 1,200 Sq.Ft.
  • 8220 S Perry Avenue Sold

    $120,000

    8220 S Perry Avenue, Chicago, IL 60620

    • 3 Beds
    • 2 Baths
    • 1,187 Sq.Ft.
  • 15701 Orlan Brook Drive Unit: 1 Leased

    $2,075/mo

    15701 Orlan Brook Drive Unit: 1, Orland Park, IL 60462

    • 2 Beds
    • 2 Baths
    • 1,200 Sq.Ft.
  • 4609 S Vincennes Avenue Unit: 2 Leased

    $1,850/mo

    4609 S Vincennes Avenue Unit: 2, Chicago, IL 60653

    • 2 Beds
    • 2 Baths
  • 7201 S Fairfield Avenue Unit: 2 Leased

    $1,850/mo

    7201 S Fairfield Avenue Unit: 2, Chicago, IL 60629

    • 3 Beds
    • 1 Bath
    • 1,100 Sq.Ft.
  • 368 Luella Avenue Unit: 1 Leased

    $1,800/mo

    368 Luella Avenue Unit: 1, Calumet City, IL 60409

    • 3 Beds
    • 2 Baths
    • 1,200 Sq.Ft.
  • 1055 W 87th Street Leased

    $1,628/mo

    1055 W 87th Street, Chicago, IL 60620

    • 2 Beds
    • 2 Baths
    • 1,000 Sq.Ft.
  • 1902 ANDOVER ST #200 Leased

    $1,475/mo

    1902 ANDOVER ST #200, SUN CITY CENTER, FL 33573

    • 2 Beds
    • 2 Baths
    • 960 Sq.Ft.
View All

Follow Us On Instagram